Cette offre tout-en-un maison neuve clé en main sur un terrain de 601 m² située à Abbeville (80100) pour 198 000 € vous est proposée par notre agence Habitat Concept POULAINVILLE.
Offre maison et terrain tout inclus à Abbeville :Idéal première acquisition, ou maison de vacances.
Le groupe BDL vous propose un projet de construction d’une maison personnalisée et moderne de
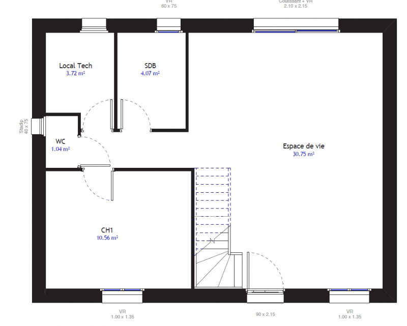
70m² en combles aménagés, sur un terrain de 600 M² situé sur la commune de VAUCHELLES LES QUESNOY, PROCHE ABBEVILLE, MOINS DE 2 HEURES DE PARIS ET 30 MIN DE LA MER (ST VALERY SUR SOMME, LE CROTOY).
Ce pavillon neuf au normes RE2020, se compose d’un bel espace de vie ouvert, 3 chambres, 1 salle de bains, WC séparé, cellier.
Maison offrant de belles prestations avec son élévation en bloc terre cuite, habillage en briques noires, isolation de type Hybris, ses menuiseries habillage alu extérieur avec volets roulants électriques centralisés, coffres de volets roulants type BBI (invisible), couverture en tuiles terre cuite, chauffage par pompe à chaleur, carrelages pour les pièces de vie en 45X45, normes RE 2020 et test d’étanchéité.
Renseignements par téléphone ou par mail pour votre projet de construction de maison individuelle.
Autres projets disponibles sur d’autres localités, plans sur-mesure en fonction de vos besoins et de votre budget.
Terrain proposé par un partenaire foncier selon disponibilité.
Pavillon proposé avec contrat de construction de maison individuelle, dans le cadre de la loi du 19/12/1990.
Branchements et raccordements inclus.
Hors papiers peints, peintures, revêtements de sol pour les chambres, qui sont chiffrés dans les travaux restant à la charge du client.
Différents modèles disponibles pour ce terrain.
Assurances et garanties du constructeur comprises (RC professionnelle, décennale, dommage ouvrage, garantie de livraison).
Restant à votre disposition.
Rêvez de votre future maison neuve : contactez nos experts de l'habitat sans plus attendre et donnez vie à votre projet de construction !
A partir des paramètres de l'offre maison + terrain clé en main située à Abbeville dans le 80, découvrez d'autres offres susceptibles de vous intéresser.
Nos équipes travaillent au quotidien avec un vaste réseau de partenaires, soigneusement choisis et encadrés pour vous proposer un maximum d'offres maisons et terrains tout inclus dans la Somme.
Habitat Concept vous propose cette offre tout inclus pour vous permettre de devenir propriétaire d'une maison neuve clés en main à Abbeville pour 198 000 € prête à vous accueillir.
Vous n'avez plus qu'à personnaliser et à finaliser ce projet selon vos préférences et vous envies ! ❤️
Faites-nous part de votre demande en rencontrant l'un de nos experts de l'habitat dans l'une de nos agences.
Trouvez l'agence la plus proche de chez vous !
|
Mes offres clés en main
|
||
|---|---|---|
| Aucune sélection |
|
Mes terrains
|
||
|---|---|---|
| Aucune sélection |
|
Mes plans maison
|
||
|---|---|---|
| Aucune sélection |
