Construction d'une maison Mernel (35330) 225 000 €

Votre maison neuve à Mernel (35330) pour 225 000 € n°4890970

Découvrez cette maison neuve à Mernel dans l'Ille-Et-Vilaine pour votre projet de construction avec Habitat Concept.

Partager sur

Achat maison neuve Mernel avec terrain de 443 m² à 225 000 € offre 4890970

Cette offre tout-en-un maison neuve clé en main sur un terrain de 443 m² située à Mernel (35330) pour 225 000 € vous est proposée par notre agence Habitat Concept Rennes.

Offre maison et terrain tout inclus à Mernel :

Habitat Concept – Groupe BDL, agence de Cesson-Sévigné vous propose un projet de construction d'une maison personnalisée de 100 m² habitables + garage, sur un terrain de 443 m2 situé à Mernel.

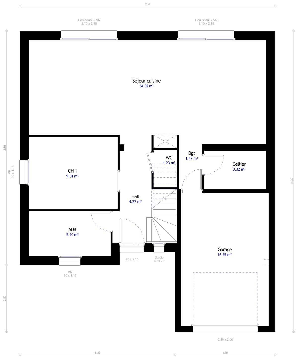
Cette jolie maison neuve se compose au RDC d'un espace de vie lumineux entièrement ouvert, une suite parentale, un WC et un cellier communiquant avec le garage.
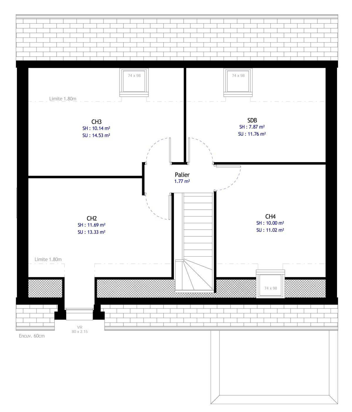
A l'étage, vous trouverez 3 chambres, une salle de bains et un WC.

Maison aux normes RE 2020 offrant de belles prestations : Construction en briques, pompe à chaleur, plancher chauffant, carrelage 60x60cm, menuiseries en aluminium anthracite, fermeture centralisée des volets roulants…

Autres terrains disponibles proposés par notre partenaire foncier, selon disponibilités.
Autres localisations : nous consulter.

Plans personnalisables en fonction de vos besoins et de votre budget.
Autres modèles de maisons disponibles pour ce terrain.

Maison à construire proposée dans le cadre sécurisant d’un Contrat de Construction de Maison Individuelle - CCMI.

Prix incluant le terrain et la maison. Hors frais de notaires, options et taxes diverses.

Et si nous discutions de votre projet de future maison de qualité ?

Mentions légales
  • Terrain proposé par un partenaire foncier selon disponibilités (hors droit d'enregistrement et frais de notaire).
  • Maison proposée avec un contrat de construction de maison individuelle (hors branchements et raccordements, papiers peints, peintures, revêtement de sol dans les chambres, restants à charge du client).
    Construction conforme à la RE2020.
    Assurances et garanties du constructeur comprises (RC professionnelle, décennale, dommage ouvrage).
Et aussi Financez votre projet maison !

Rêvez de votre future maison neuve : contactez nos experts de l'habitat sans plus attendre et donnez vie à votre projet de construction !

Financer cette maison
Retrouvez aussi nos autres maisons neuves similaires et à proximité

A partir des paramètres de l'offre maison + terrain clé en main située à Mernel dans le 35, découvrez d'autres offres susceptibles de vous intéresser.

Chargement...

Votre maison + terrain à Mernel (35) pour 225 000 € offre n°4890970

Nos équipes travaillent au quotidien avec un vaste réseau de partenaires, soigneusement choisis et encadrés pour vous proposer un maximum d'offres maisons et terrains tout inclus dans l'Ille-Et-Vilaine.

Habitat Concept vous propose cette offre tout inclus pour vous permettre de devenir propriétaire d'une maison neuve clés en main à Mernel pour 225 000 € prête à vous accueillir.

Vous n'avez plus qu'à personnaliser et à finaliser ce projet selon vos préférences et vous envies ! ❤️

Trouver le terrain adapté pour faire construire sa future maison
Recevoir chaque semaine nos dernières offres
Intéressé par cette maison + terrain à Mernel ?
Contactez-nous en agence

Faites-nous part de votre demande en rencontrant l'un de nos experts de l'habitat dans l'une de nos agences.

Trouvez l'agence la plus proche de chez vous !

Chargement...
Contactez-nous en ligne
Chargement...
Informations complémentaires
reCAPTCHA -
Chargement...
Ma sélection
Mes offres clés en main
Aucune sélection
Mes terrains
Aucune sélection
Mes plans maison
Aucune sélection