Cette offre tout-en-un maison neuve clé en main sur un terrain de 443 m² située à Mernel (35330) pour 225 000 € vous est proposée par notre agence Habitat Concept Rennes.
Offre maison et terrain tout inclus à Mernel :Habitat Concept – Groupe BDL, agence de Cesson-Sévigné vous propose un projet de construction d'une maison personnalisée de 100 m² habitables + garage, sur un terrain de 443 m2 situé à Mernel.
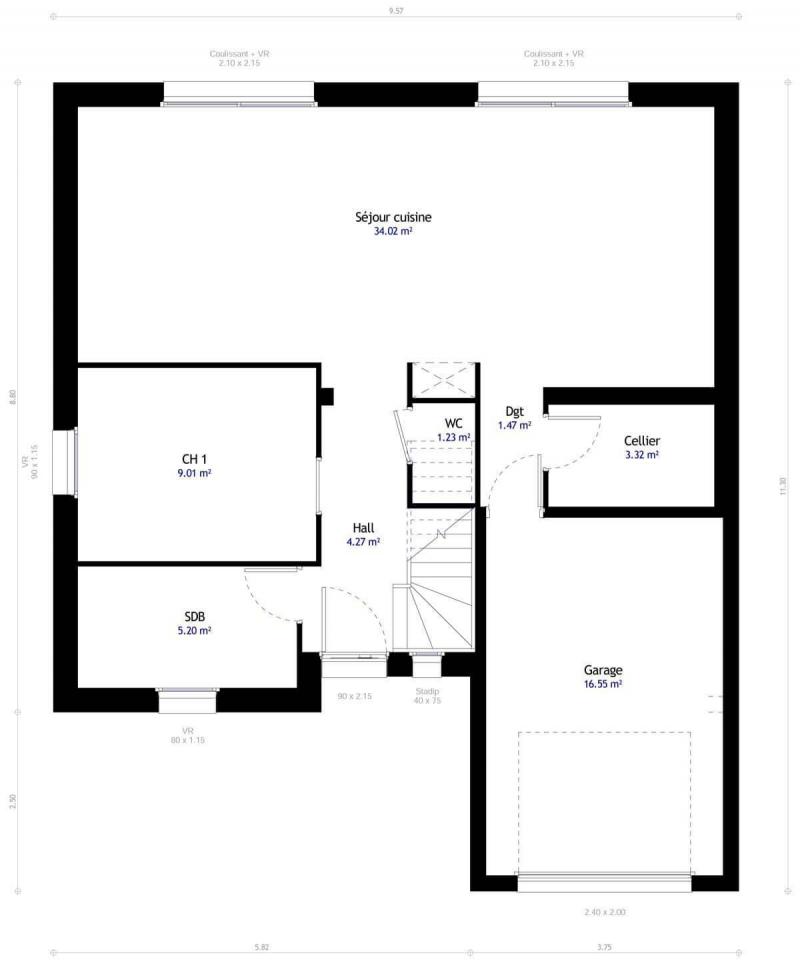
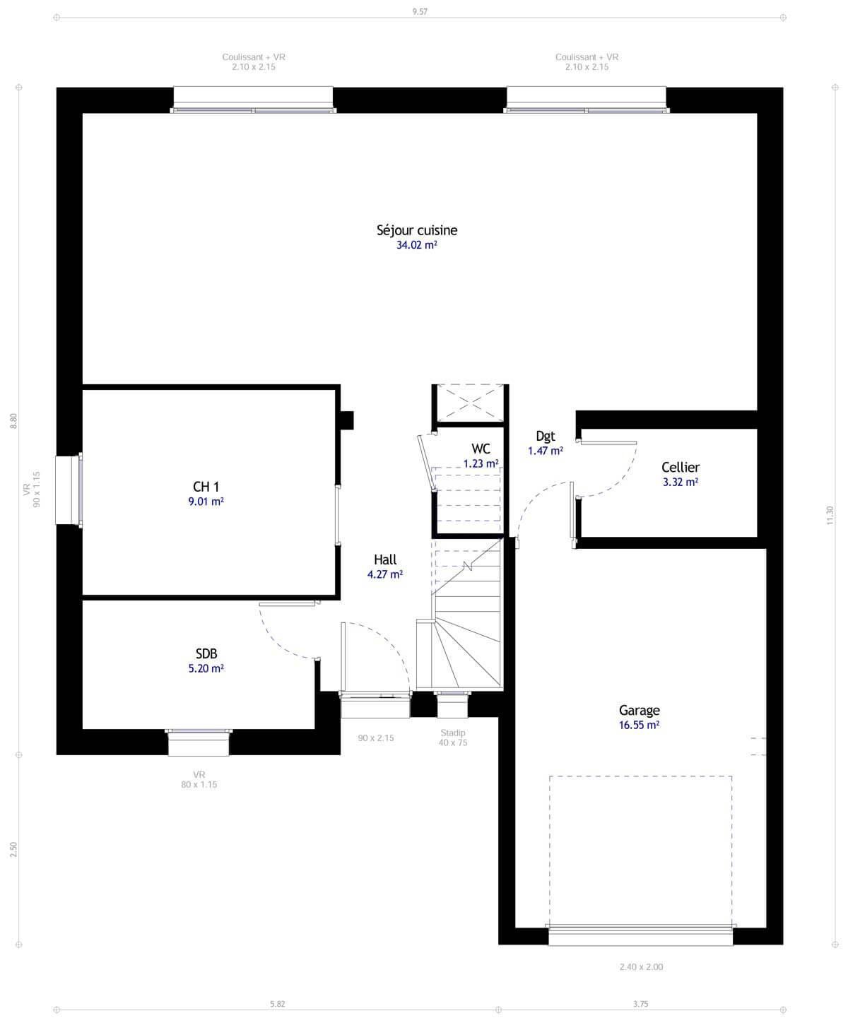
Cette jolie maison neuve se compose au RDC d'un espace de vie lumineux entièrement ouvert, une suite parentale, un WC et un cellier communiquant avec le garage.
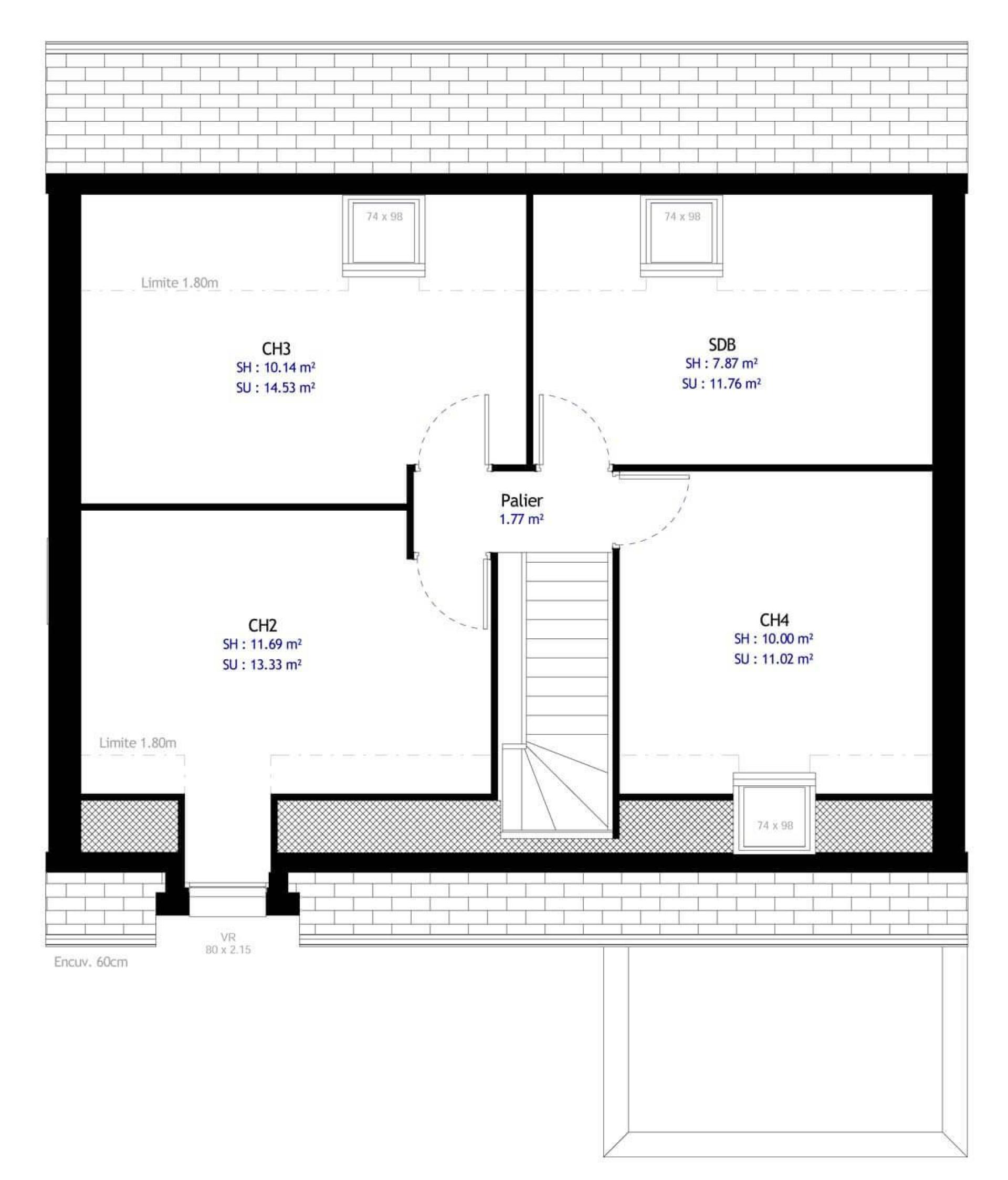
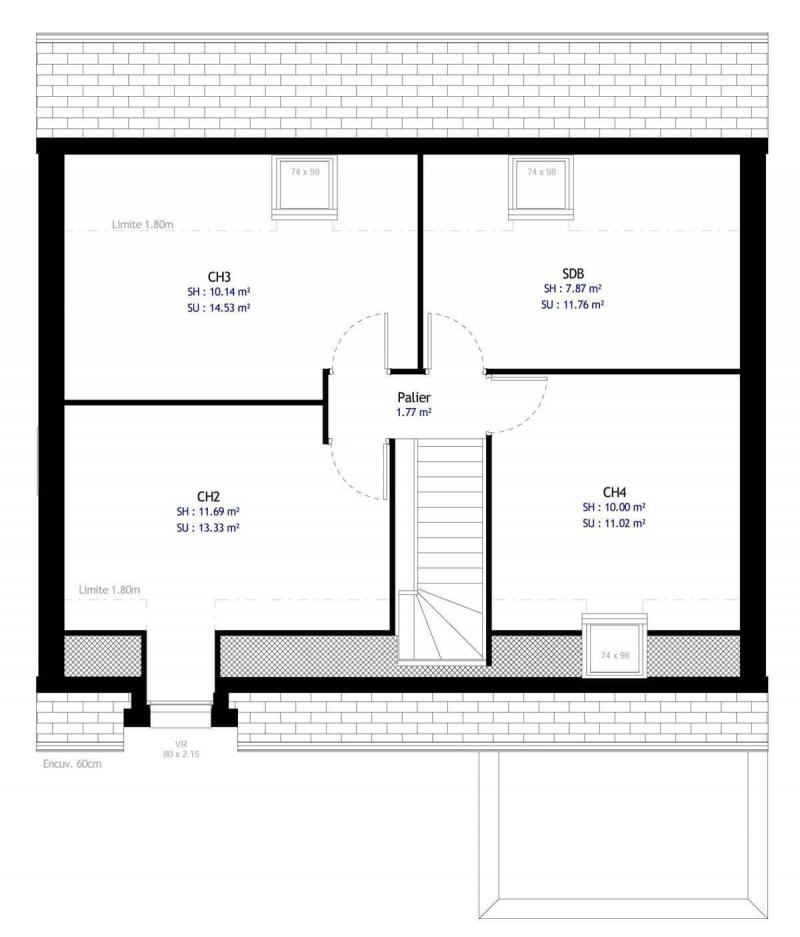
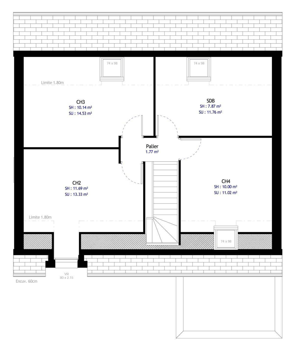
A l'étage, vous trouverez 3 chambres, une salle de bains et un WC.
Maison aux normes RE 2020 offrant de belles prestations : Construction en briques, pompe à chaleur, plancher chauffant, carrelage 60x60cm, menuiseries en aluminium anthracite, fermeture centralisée des volets roulants…
Autres terrains disponibles proposés par notre partenaire foncier, selon disponibilités.
Autres localisations : nous consulter.
Plans personnalisables en fonction de vos besoins et de votre budget.
Autres modèles de maisons disponibles pour ce terrain.
Maison à construire proposée dans le cadre sécurisant d’un Contrat de Construction de Maison Individuelle - CCMI.
Prix incluant le terrain et la maison. Hors frais de notaires, options et taxes diverses.
Et si nous discutions de votre projet de future maison de qualité ?
Rêvez de votre future maison neuve : contactez nos experts de l'habitat sans plus attendre et donnez vie à votre projet de construction !
A partir des paramètres de l'offre maison + terrain clé en main située à Mernel dans le 35, découvrez d'autres offres susceptibles de vous intéresser.
Nos équipes travaillent au quotidien avec un vaste réseau de partenaires, soigneusement choisis et encadrés pour vous proposer un maximum d'offres maisons et terrains tout inclus dans l'Ille-Et-Vilaine.
Habitat Concept vous propose cette offre tout inclus pour vous permettre de devenir propriétaire d'une maison neuve clés en main à Mernel pour 225 000 € prête à vous accueillir.
Vous n'avez plus qu'à personnaliser et à finaliser ce projet selon vos préférences et vous envies ! ❤️
Faites-nous part de votre demande en rencontrant l'un de nos experts de l'habitat dans l'une de nos agences.
Trouvez l'agence la plus proche de chez vous !
|
Mes offres clés en main
|
||
|---|---|---|
| Aucune sélection |
|
Mes terrains
|
||
|---|---|---|
| Aucune sélection |
|
Mes plans maison
|
||
|---|---|---|
| Aucune sélection |
