Cette offre tout-en-un maison neuve clé en main sur un terrain de 403 m² située à La Bassée (59480) pour 240 320 € vous est proposée par notre agence Habitat Concept LENS.
Offre maison et terrain tout inclus à La Bassée :Réalisez votre projet immobilier avec Habitat Concept, constructeur reconnu avec plus de 35 ans d’expérience, et faites construire votre maison sur un terrain de 403 m² situé à La Bassée, dans un environnement agréable, hors lotissement, offrant calme et qualité de vie.
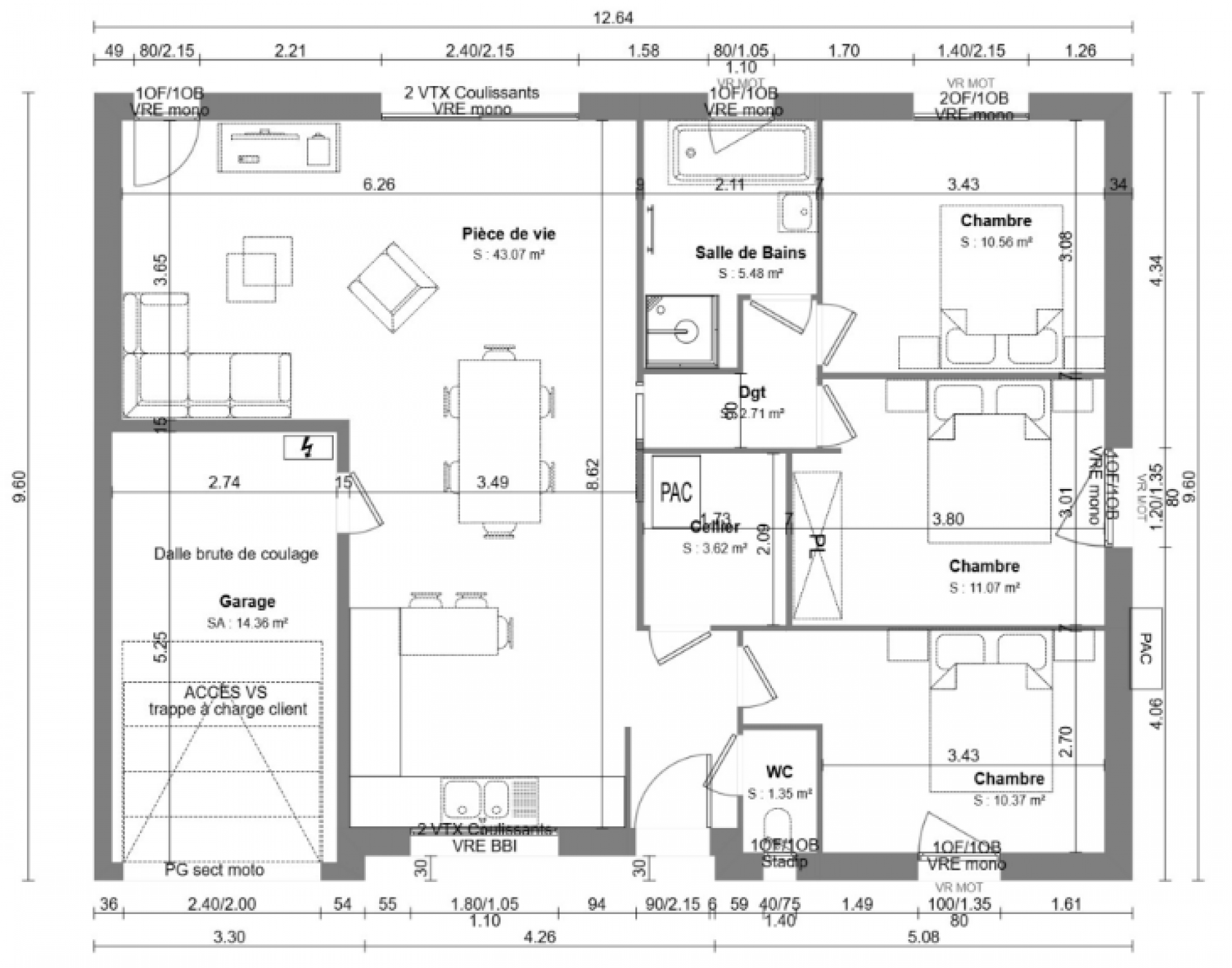
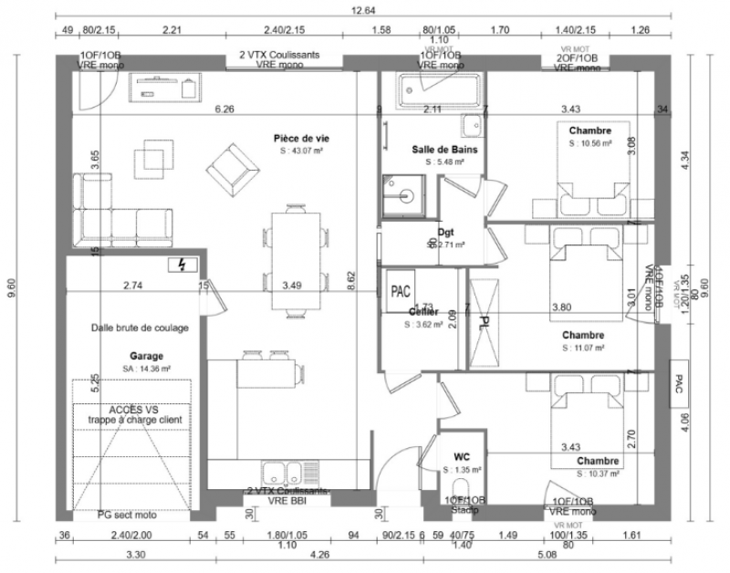
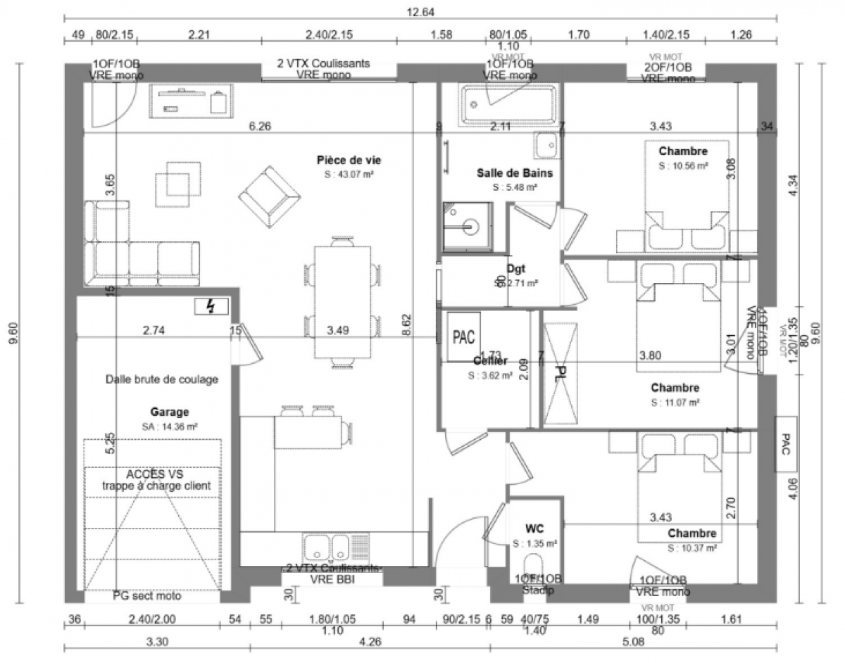
Caractéristiques de la maison :
Type : Plain-pied
Style : Contemporain
Surface habitable : 89 m²
3 chambres lumineuses
1 salle de bain fonctionnelle
Garage inclus
Construction conforme aux normes RE2020, garantissant confort thermique et performance énergétique
Les atouts du projet :
Terrain situé hors lotissement, pour plus de tranquillité
Éligible au Prêt à Taux Zéro (PTZ) selon conditions d’éligibilité
Assurances constructeur incluses dans le cadre du Contrat de Construction de Maison Individuelle (CCMI)
Accompagnement personnalisé à chaque étape de votre projet
Le terrain de 403 m² permet d’aménager un extérieur agréable avec jardin, terrasse ou espace détente selon vos envies.
Mentions légales obligatoires :
Terrain proposé par un partenaire foncier sous réserve de disponibilité. Projet de construction avec Habitat Concept dans le cadre d’un CCMI. Visuels non contractuels. Prix indicatif hors frais de notaire, sanitaires et cuisine frais de raccordements, taxes d’urbanisme, aménagements extérieurs et peintures. Éligibilité au PTZ sous conditions. Garanties constructeur incluses : garantie de livraison, garantie de parfait achèvement, garantie biennale et garantie décennale.
Contactez-nous dès maintenant pour une étude gratuite et personnalisée de votre projet de construction à La Bassée.
Rêvez de votre future maison neuve : contactez nos experts de l'habitat sans plus attendre et donnez vie à votre projet de construction !
A partir des paramètres de l'offre maison + terrain clé en main située à La Bassée dans le 59, découvrez d'autres offres susceptibles de vous intéresser.
Nos équipes travaillent au quotidien avec un vaste réseau de partenaires, soigneusement choisis et encadrés pour vous proposer un maximum d'offres maisons et terrains tout inclus dans le Nord.
Habitat Concept vous propose cette offre tout inclus pour vous permettre de devenir propriétaire d'une maison neuve clés en main à La Bassée pour 240 320 € prête à vous accueillir.
Vous n'avez plus qu'à personnaliser et à finaliser ce projet selon vos préférences et vous envies ! ❤️
Faites-nous part de votre demande en rencontrant l'un de nos experts de l'habitat dans l'une de nos agences.
Trouvez l'agence la plus proche de chez vous !
|
Mes offres clés en main
|
||
|---|---|---|
| Aucune sélection |
|
Mes terrains
|
||
|---|---|---|
| Aucune sélection |
|
Mes plans maison
|
||
|---|---|---|
| Aucune sélection |
