Cette offre tout-en-un maison neuve clé en main sur un terrain de 666 m² située à Yvetot-Bocage (50700) pour 243 500 € vous est proposée par notre agence Habitat Concept SAINT-LO.
Offre maison et terrain tout inclus à Yvetot-Bocage :Un projet de construction clés en main avec Habitat Concept, constructeur du groupe BDL
Réalisez votre projet de vie à Yvetot-Bocage, dans la Manche, en devenant propriétaire d’une maison neuve moderne et confortable sur un terrain de 666 m².
Yvetot-Bocage (50700) – Un cadre de vie recherché
Commune rurale agréable à 5 minutes de Valognes
Accès rapide à Cherbourg, Carentan-les-Marais, et à l’axe N13
Écoles, services de proximité, commerces et gare SNCF à quelques minutes
Environnement calme, idéal pour une vie de famille ou un premier achat
Superficie : 666 m²
Bien exposé, en lotissement.
Terrain constructible, situé dans un secteur résidentiel
Proche des commodités et facile d’accès
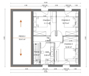
Modèle à combles aménagés – 102,37 m² habitables
Ce modèle combine design traditionnel et fonctionnalité pour s’adapter à tous les styles de vie :
Rez-de-chaussée :
Espace de vie de 47 m² : séjour, salle à manger et cuisine ouverte, très lumineux
1 chambre au RDC,
1 cellier pour la buanderie ou les rangements
À l'étage :
2 chambres supplémentaires sous combles aménagés
1 salle de bain.
Aménagement optimisé pour le confort des enfants ou le télétravail
Garage intégré de 15 m²
Maison conforme à la réglementation RE 2020, avec des prestations modulables.
Construction neuve économe en énergie
Plan optimisé et personnalisable
Environnement calme et campagne proche des grands axes
Constructeur de confiance avec accompagnement de A à Z
Des modèles variés & des projets sur mesure
Ce modèle peut être adapté selon vos besoins (4 chambres, bureau, garage accolé, surfaces différentes).
Nous proposons également un large choix de maisons :
Plain-pied, à étage, en L, contemporaines ou régionales
Projets 100 % personnalisables selon votre style de vie et votre budget
Étude gratuite avec votre conseiller Habitat Concept
Prix incluant la maison + le terrain, hors frais de notaire, taxes, raccordements, revêtements de sol et peintures
Terrain proposé en partenariat avec notr
Rêvez de votre future maison neuve : contactez nos experts de l'habitat sans plus attendre et donnez vie à votre projet de construction !
A partir des paramètres de l'offre maison + terrain clé en main située à Yvetot-Bocage dans le 50, découvrez d'autres offres susceptibles de vous intéresser.
Nos équipes travaillent au quotidien avec un vaste réseau de partenaires, soigneusement choisis et encadrés pour vous proposer un maximum d'offres maisons et terrains tout inclus dans la Manche.
Habitat Concept vous propose cette offre tout inclus pour vous permettre de devenir propriétaire d'une maison neuve clés en main à Yvetot-Bocage pour 243 500 € prête à vous accueillir.
Vous n'avez plus qu'à personnaliser et à finaliser ce projet selon vos préférences et vous envies ! ❤️
Faites-nous part de votre demande en rencontrant l'un de nos experts de l'habitat dans l'une de nos agences.
Trouvez l'agence la plus proche de chez vous !
|
Mes offres clés en main
|
||
|---|---|---|
| Aucune sélection |
|
Mes terrains
|
||
|---|---|---|
| Aucune sélection |
|
Mes plans maison
|
||
|---|---|---|
| Aucune sélection |
