Cette offre tout-en-un maison neuve clé en main sur un terrain de 666 m² située à Yvetot-Bocage (50700) pour 303 800 € vous est proposée par notre agence Habitat Concept SAINT-LO.
Offre maison et terrain tout inclus à Yvetot-Bocage :Maisons Habitat Concept Saint Lo vous propose un projet de construction d'une maison originale et moderne de 136m2 , sur un terrain de 666 m2 situé à YVETOT BOCAGE proche de toutes commodités.
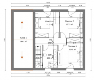
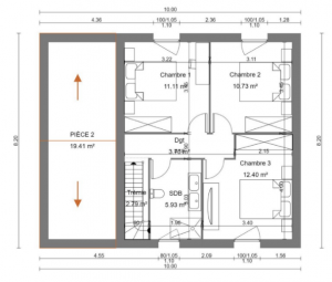
Ce pavillon neuf se compose d'un bel espace de vie tout ouvert, 3 chambres, 1 salle de bains avec grande douche italienne, un WC séparé et un cellier pour 136 m2 habitables, ainsi qu'un garage communiquant de 21 m2. Maison offrant de belles prestations avec ses menuiseries et volets centralisés, chauffage central économique, RE2020.
Renseignements par téléphone pour votre projet de construction de maison individuelle.
Autres projets disponibles sur d'autres localités, plans sur mesure en fonction de vos besoins et votre budget.
Agence de Saint Lo
Rêvez de votre future maison neuve : contactez nos experts de l'habitat sans plus attendre et donnez vie à votre projet de construction !
A partir des paramètres de l'offre maison + terrain clé en main située à Yvetot-Bocage dans le 50, découvrez d'autres offres susceptibles de vous intéresser.
Nos équipes travaillent au quotidien avec un vaste réseau de partenaires, soigneusement choisis et encadrés pour vous proposer un maximum d'offres maisons et terrains tout inclus dans la Manche.
Habitat Concept vous propose cette offre tout inclus pour vous permettre de devenir propriétaire d'une maison neuve clés en main à Yvetot-Bocage pour 303 800 € prête à vous accueillir.
Vous n'avez plus qu'à personnaliser et à finaliser ce projet selon vos préférences et vous envies ! ❤️
Faites-nous part de votre demande en rencontrant l'un de nos experts de l'habitat dans l'une de nos agences.
Trouvez l'agence la plus proche de chez vous !
|
Mes offres clés en main
|
||
|---|---|---|
| Aucune sélection |
|
Mes terrains
|
||
|---|---|---|
| Aucune sélection |
|
Mes plans maison
|
||
|---|---|---|
| Aucune sélection |
