Cette offre tout-en-un maison neuve clé en main sur un terrain de 570 m² située à Aviron (27930) pour 250 000 € vous est proposée par notre agence Habitat Concept EVREUX.
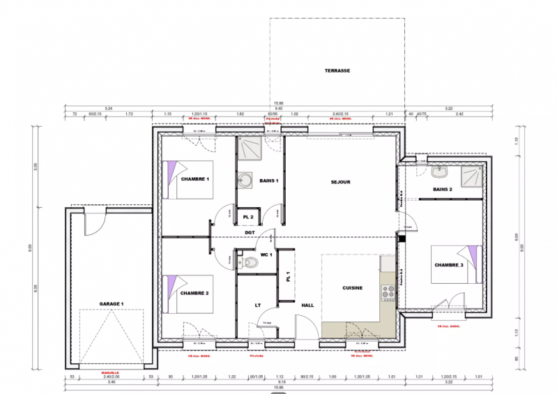
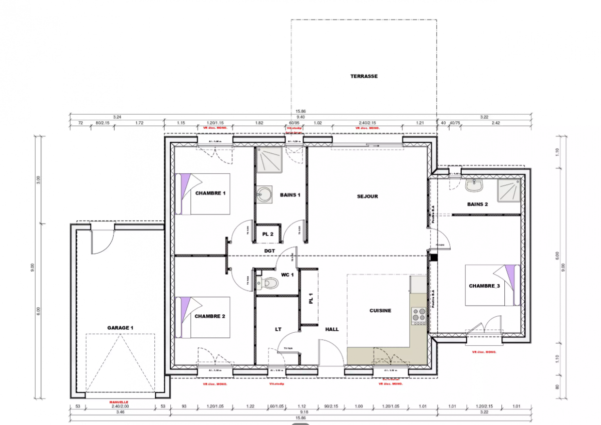
Offre maison et terrain tout inclus à Aviron :Découvrez cette belle maison de plain-pied avec garage indépendant alliant modernité et confort, idéale pour une vie de famille agréable. Dès l’entrée, un hall avec rangements intégrés offre une organisation optimale.
Le séjour lumineux avec cuisine ouverte constitue un véritable espace de convivialité, baigné de lumière naturelle grâce à de larges ouvertures.
Trois chambres confortables accueillent l’espace nuit, complété par deux salle de bain avec WC pour un confort au quotidien.
Pièce de vie et pièces d'eau entièrement carrelé,
Fonctionnelle et bien pensée, cette maison offre un cadre de vie moderne et chaleureux, prêt à vous séduire.
Vous avez un projet mais vous ne savez pas si vous êtes éligible ?
Un simple rendez-vous de 30 minutes suffit pour faire le point et voir si ce rêve est à votre portée.
Contactez-nous dès maintenant !
Rêvez de votre future maison neuve : contactez nos experts de l'habitat sans plus attendre et donnez vie à votre projet de construction !
A partir des paramètres de l'offre maison + terrain clé en main située à Aviron dans le 27, découvrez d'autres offres susceptibles de vous intéresser.
Nos équipes travaillent au quotidien avec un vaste réseau de partenaires, soigneusement choisis et encadrés pour vous proposer un maximum d'offres maisons et terrains tout inclus dans l'Eure.
Habitat Concept vous propose cette offre tout inclus pour vous permettre de devenir propriétaire d'une maison neuve clés en main à Aviron pour 250 000 € prête à vous accueillir.
Vous n'avez plus qu'à personnaliser et à finaliser ce projet selon vos préférences et vous envies ! ❤️
Faites-nous part de votre demande en rencontrant l'un de nos experts de l'habitat dans l'une de nos agences.
Trouvez l'agence la plus proche de chez vous !
|
Mes offres clés en main
|
||
|---|---|---|
| Aucune sélection |
|
Mes terrains
|
||
|---|---|---|
| Aucune sélection |
|
Mes plans maison
|
||
|---|---|---|
| Aucune sélection |
