Cette offre tout-en-un maison neuve clé en main sur un terrain de 701 m² située à Cucq (62780) pour 520 686 € vous est proposée par notre agence Habitat Concept LE TOUQUET.
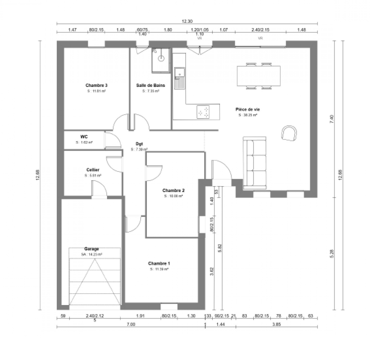
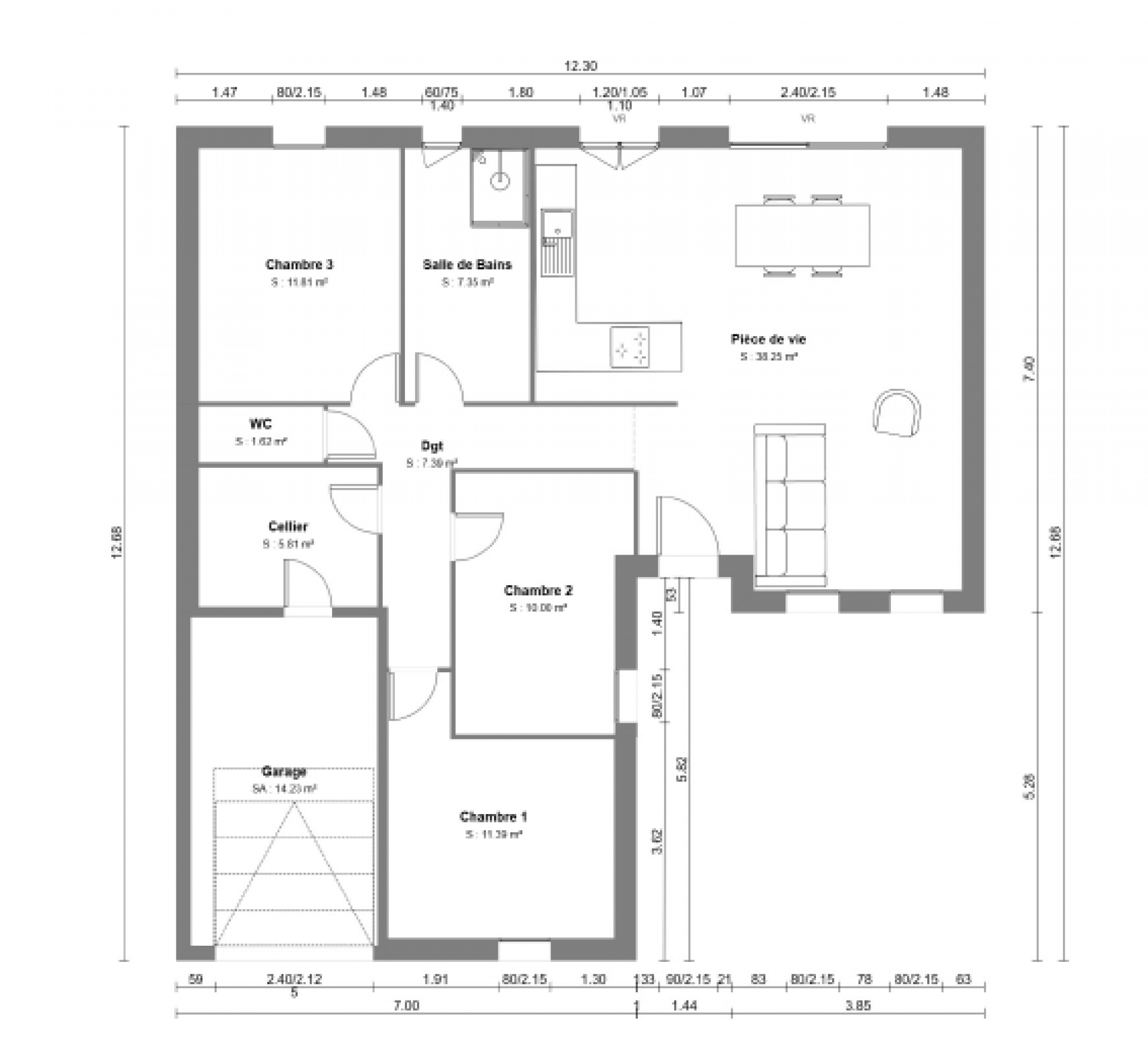
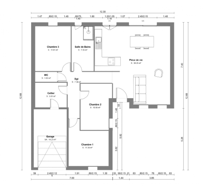
Offre maison et terrain tout inclus à Cucq :Ce projet concerne la construction clé en main d'une maison individuelle de plain-pied de 92.38 m² avec garage , comprenant 3 chambres à Cucq **** L'offre inclut l'intégralité des prestations de construction, à l'exception des travaux de peinture intérieure et l’aménagement de la cuisine et des dressings qui restent possibles en option en visitant notre showroom.
****
Caractéristiques de la maison
* Type : Maison de plain-pied
* Nombre de chambres : 3
* 1 garage
*
****
Prestations incluses : Terrain viabilisé + raccordements (tout à l'égout) + étalement des terres + construction + revêtements des sols ( carrelage 45x45 dans la pièce de vie et stratifié dans les chambres) + sanitaires ( lavabo / wc / douche à l’italienne) et faïences dans la salle de bain
***
Prestations non incluses dans le tarif mais qui reste possible en option dans notre showroom: Peinture intérieure / aménagement cuisine / dressing
*** *** Faites le grand saut ! Signez votre projet avant le 31/12/2025 et déduisez directement 6000€ de l'achat de votre cuisine en showroom.
***
Bien que notre offre soit "tout inclus", il est également possible de personnaliser votre projet. Notre équipe est à votre disposition pour vous accompagner et répondre à toutes vos questions.
***
N'attendez plus pour concrétiser votre projet ! Pour plus d'informations veuillez nous contacter en agence au 0321890450 ou directement auprès de notre commercial Sylvain Delannoye 0675391244. Nous serons ravis de vous accompagner à chaque étape de votre projet
Rêvez de votre future maison neuve : contactez nos experts de l'habitat sans plus attendre et donnez vie à votre projet de construction !
A partir des paramètres de l'offre maison + terrain clé en main située à Cucq dans le 62, découvrez d'autres offres susceptibles de vous intéresser.
Nos équipes travaillent au quotidien avec un vaste réseau de partenaires, soigneusement choisis et encadrés pour vous proposer un maximum d'offres maisons et terrains tout inclus dans le Pas-De-Calais.
Habitat Concept vous propose cette offre tout inclus pour vous permettre de devenir propriétaire d'une maison neuve clés en main à Cucq pour 520 686 € prête à vous accueillir.
Vous n'avez plus qu'à personnaliser et à finaliser ce projet selon vos préférences et vous envies ! ❤️
Faites-nous part de votre demande en rencontrant l'un de nos experts de l'habitat dans l'une de nos agences.
Trouvez l'agence la plus proche de chez vous !
|
Mes offres clés en main
|
||
|---|---|---|
| Aucune sélection |
|
Mes terrains
|
||
|---|---|---|
| Aucune sélection |
|
Mes plans maison
|
||
|---|---|---|
| Aucune sélection |
