Construction d'une maison Toutainville (27500) 308 500 €

Votre maison neuve à Toutainville (27500) pour 308 500 € n°4909240

Découvrez cette maison neuve à Toutainville dans l'Eure pour votre projet de construction avec Habitat Concept.

Partager sur

Achat maison neuve Toutainville avec terrain de 1 825 m² à 308 500 € offre 4909240

Cette offre tout-en-un maison neuve clé en main sur un terrain de 1 825 m² située à Toutainville (27500) pour 308 500 € vous est proposée par notre agence Habitat Concept HONFLEUR.

Offre maison et terrain tout inclus à Toutainville :

À Toutainville, découvrez ce superbe terrain de 1 825 m², idéalement situé à seulement 2 minutes de l’entrée/sortie de l’autoroute A13 et 8 minutes du centre-ville de Pont-Audemer.
Un emplacement privilégié, alliant calme et accessibilité, parfait pour concrétiser votre projet de construction personnalisé.

Habitat Concept, constructeur depuis 1989, vous accompagne de A à Z dans toutes vos démarches : financement, choix du modèle, permis de construire, suivi de chantier…

Nous vous proposons :

- Plus de 150 modèles de maisons 100 % personnalisables
- Des projets sur mesure, conçus selon vos envies et votre budget
- Un accompagnement complet et local, assuré par notre agence de La Rivière-Saint-Sauveur

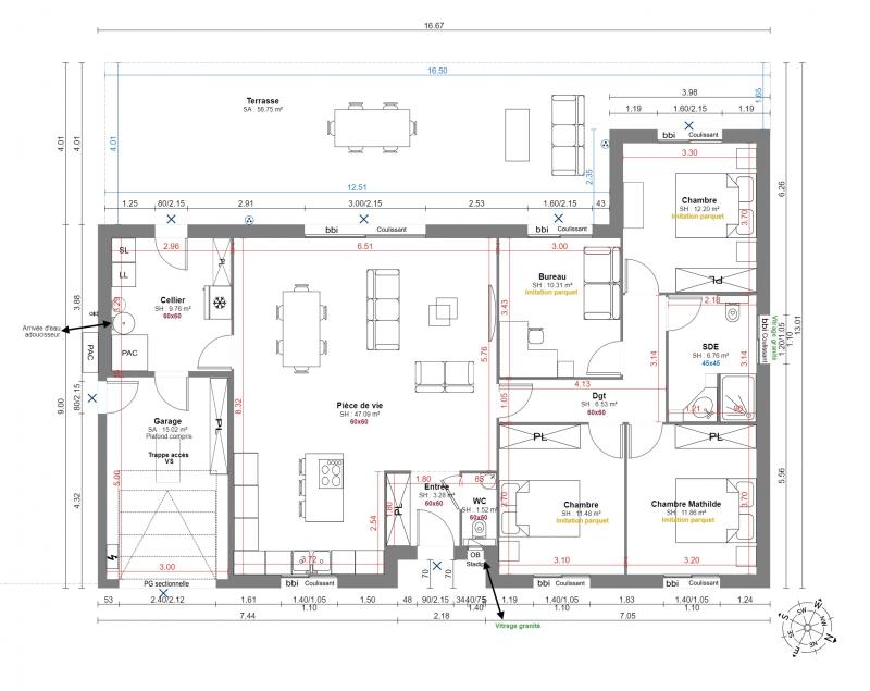
Dans cette annonce, découvrez un exemple de maison que nous pouvons réaliser sur ce beau terrain à Toutainville.

Contactez-nous dès aujourd’hui pour obtenir plus d’informations sur le terrain, le modèle de maison ou pour planifier un rendez-vous dans notre agence Habitat Concept.

Mentions légales
  • Terrain proposé par un partenaire foncier selon disponibilités (hors droit d'enregistrement et frais de notaire).
  • Maison proposée avec un contrat de construction de maison individuelle (hors branchements et raccordements, papiers peints, peintures, revêtement de sol dans les chambres, restants à charge du client).
    Construction conforme à la RE2020.
    Assurances et garanties du constructeur comprises (RC professionnelle, décennale, dommage ouvrage).
Et aussi Financez votre projet maison !

Rêvez de votre future maison neuve : contactez nos experts de l'habitat sans plus attendre et donnez vie à votre projet de construction !

Financer cette maison
Retrouvez aussi nos autres maisons neuves similaires et à proximité

A partir des paramètres de l'offre maison + terrain clé en main située à Toutainville dans le 27, découvrez d'autres offres susceptibles de vous intéresser.

Chargement...
1 autre offre à Toutainville et 110 offres à proximité correspondant à vos critères
Chargement...
Chargement...

Votre maison + terrain à Toutainville (27) pour 308 500 € offre n°4909240

Nos équipes travaillent au quotidien avec un vaste réseau de partenaires, soigneusement choisis et encadrés pour vous proposer un maximum d'offres maisons et terrains tout inclus dans l'Eure.

Habitat Concept vous propose cette offre tout inclus pour vous permettre de devenir propriétaire d'une maison neuve clés en main à Toutainville pour 308 500 € prête à vous accueillir.

Vous n'avez plus qu'à personnaliser et à finaliser ce projet selon vos préférences et vous envies ! ❤️

Trouver le terrain adapté pour faire construire sa future maison
Recevoir chaque semaine nos dernières offres
Intéressé par cette maison + terrain à Toutainville ?
Contactez-nous en agence

Faites-nous part de votre demande en rencontrant l'un de nos experts de l'habitat dans l'une de nos agences.

Trouvez l'agence la plus proche de chez vous !

Chargement...
Contactez-nous en ligne
Chargement...
Informations complémentaires
reCAPTCHA -
Chargement...
Ma sélection
Mes offres clés en main
Aucune sélection
Mes terrains
Aucune sélection
Mes plans maison
Aucune sélection