Cette offre tout-en-un maison neuve clé en main sur un terrain de 1 825 m² située à Toutainville (27500) pour 308 500 € vous est proposée par notre agence Habitat Concept HONFLEUR.
Offre maison et terrain tout inclus à Toutainville :À Toutainville, découvrez ce superbe terrain de 1 825 m², idéalement situé à seulement 2 minutes de l’entrée/sortie de l’autoroute A13 et 8 minutes du centre-ville de Pont-Audemer.
Un emplacement privilégié, alliant calme et accessibilité, parfait pour concrétiser votre projet de construction personnalisé.
Habitat Concept, constructeur depuis 1989, vous accompagne de A à Z dans toutes vos démarches : financement, choix du modèle, permis de construire, suivi de chantier…
Nous vous proposons :
- Plus de 150 modèles de maisons 100 % personnalisables
- Des projets sur mesure, conçus selon vos envies et votre budget
- Un accompagnement complet et local, assuré par notre agence de La Rivière-Saint-Sauveur
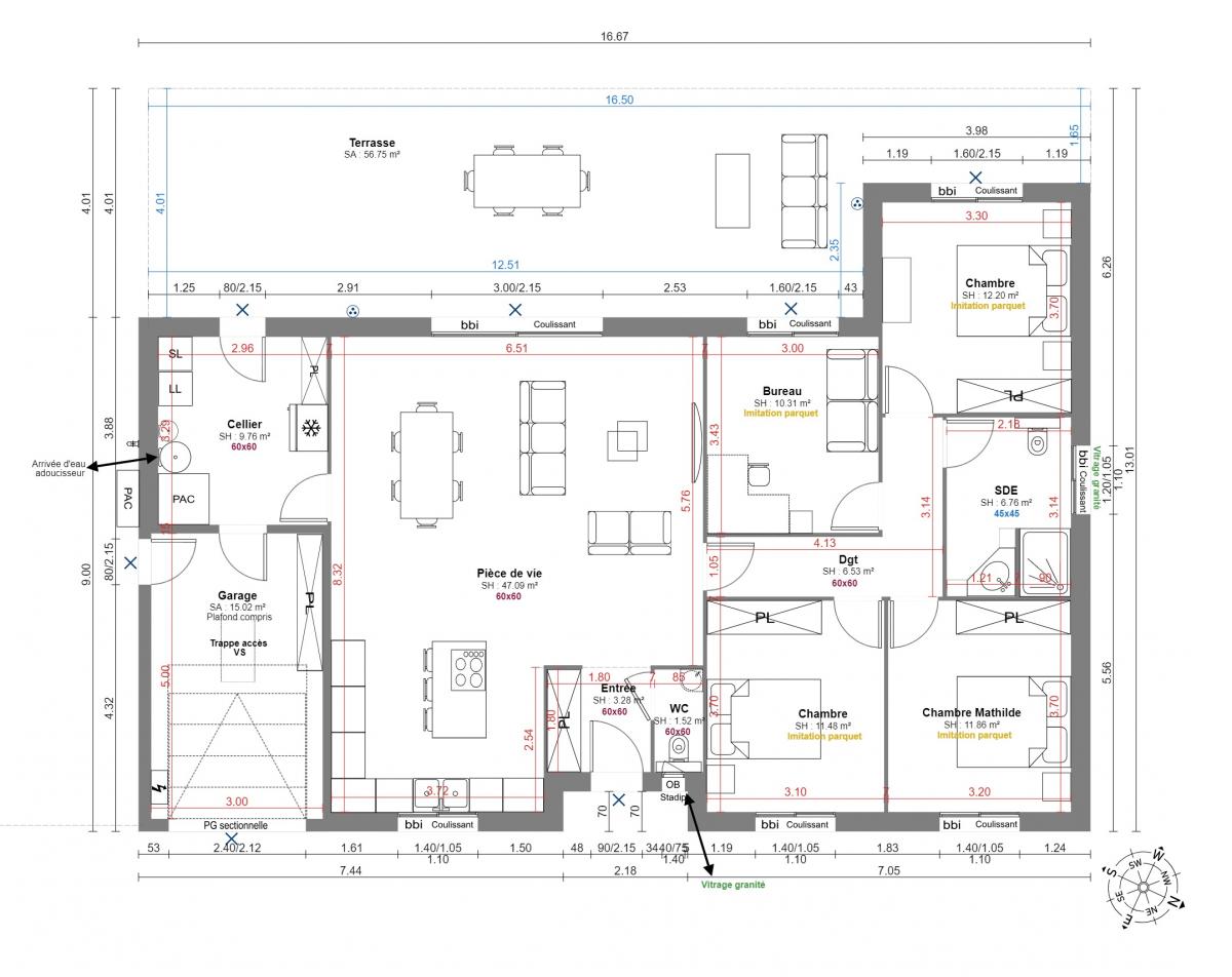
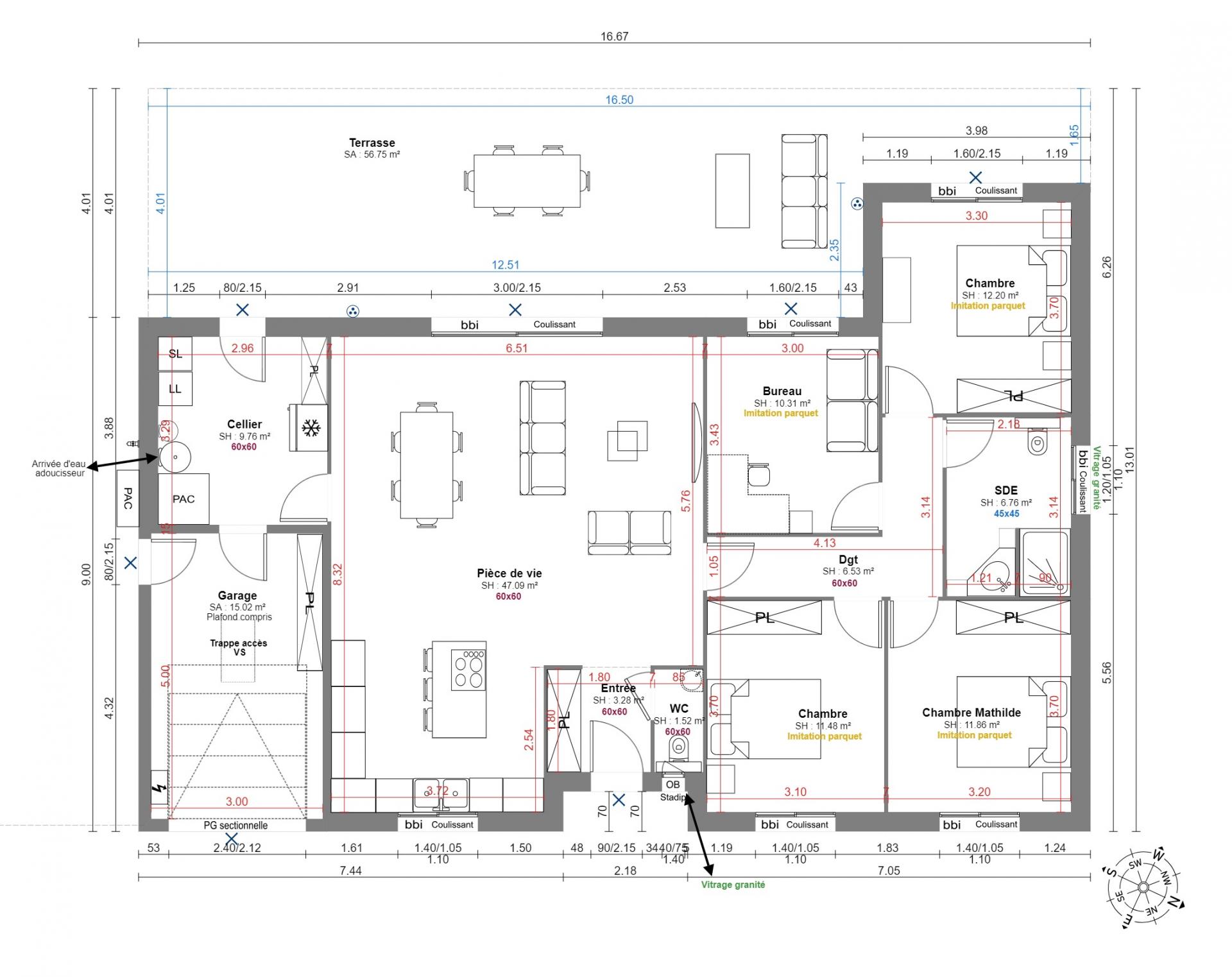
Dans cette annonce, découvrez un exemple de maison que nous pouvons réaliser sur ce beau terrain à Toutainville.
Contactez-nous dès aujourd’hui pour obtenir plus d’informations sur le terrain, le modèle de maison ou pour planifier un rendez-vous dans notre agence Habitat Concept.
Rêvez de votre future maison neuve : contactez nos experts de l'habitat sans plus attendre et donnez vie à votre projet de construction !
A partir des paramètres de l'offre maison + terrain clé en main située à Toutainville dans le 27, découvrez d'autres offres susceptibles de vous intéresser.
Nos équipes travaillent au quotidien avec un vaste réseau de partenaires, soigneusement choisis et encadrés pour vous proposer un maximum d'offres maisons et terrains tout inclus dans l'Eure.
Habitat Concept vous propose cette offre tout inclus pour vous permettre de devenir propriétaire d'une maison neuve clés en main à Toutainville pour 308 500 € prête à vous accueillir.
Vous n'avez plus qu'à personnaliser et à finaliser ce projet selon vos préférences et vous envies ! ❤️
Faites-nous part de votre demande en rencontrant l'un de nos experts de l'habitat dans l'une de nos agences.
Trouvez l'agence la plus proche de chez vous !
|
Mes offres clés en main
|
||
|---|---|---|
| Aucune sélection |
|
Mes terrains
|
||
|---|---|---|
| Aucune sélection |
|
Mes plans maison
|
||
|---|---|---|
| Aucune sélection |
