Cette offre tout-en-un maison neuve clé en main sur un terrain de 403 m² située à Douvrin (62138) pour 226 820 € vous est proposée par notre agence Habitat Concept LENS.
Offre maison et terrain tout inclus à Douvrin :Projet de construction à Douvrin (62) – Maison contemporaine avec Habitat Concept
Réalisez votre projet immobilier avec Habitat Concept, constructeur reconnu avec plus de 35 ans d’expérience dans la construction de maisons individuelles. Nous vous proposons ce projet terrain + maison sur un terrain de 403 m² situé à Douvrin, dans un secteur agréable et proche des commodités, idéal pour une vie de famille.
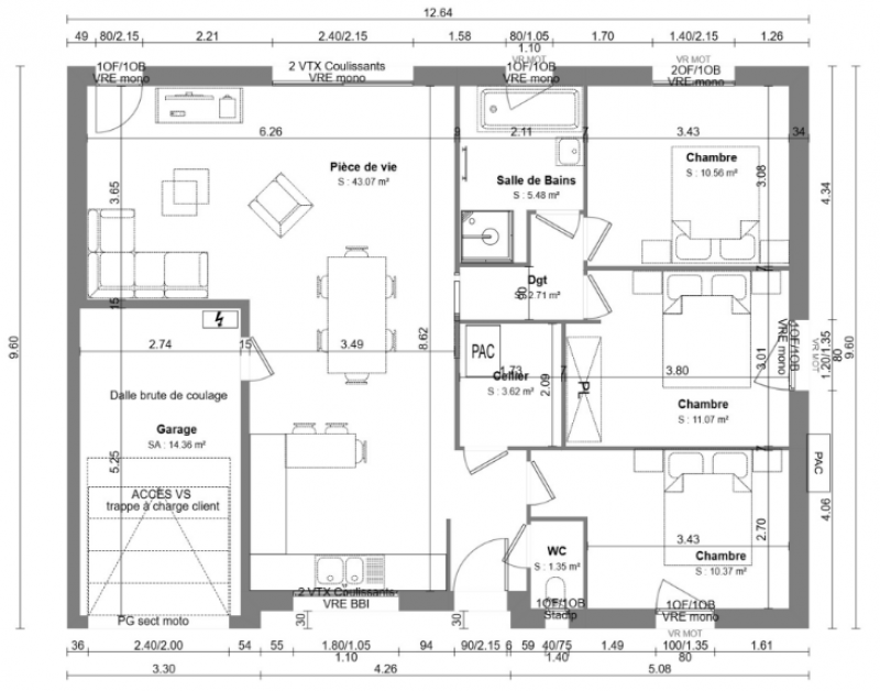
Caractéristiques de la maison proposée :
Type : Plain-pied
Style : Contemporain
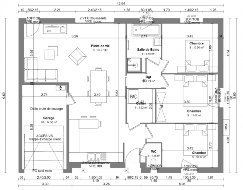
Surface habitable : 89 m²
3 chambres lumineuses
1 salle de bain fonctionnelle
Garage inclus
Maison conforme aux normes RE2020, garantissant confort thermique et performance énergétique.
Les avantages de votre projet :
Éligible au Prêt à Taux Zéro (PTZ) selon conditions d’éligibilité
Assurances constructeur incluses dans le cadre du Contrat de Construction de Maison Individuelle (CCMI)
Accompagnement personnalisé dans la conception de votre maison et le montage de votre financement.
Le terrain de 403 m² offre un cadre idéal pour aménager un espace extérieur agréable : jardin, terrasse ou espace détente selon vos envies.
Pour plus d’informations et une étude gratuite et personnalisée de votre projet, contactez-nous dès maintenant.
Mentions légales :
Terrain proposé par un partenaire foncier selon disponibilité. Projet de construction avec Habitat Concept dans le cadre d’un CCMI. Visuels non contractuels. Prix indicatif hors taxes d’urbanisme, aménagements extérieurs et peintures. Éligibilité au PTZ sous conditions. Garanties constructeur incluses selon contrat : garantie de livraison, garantie de parfait achèvement, garantie biennale et garantie décennale.
Rêvez de votre future maison neuve : contactez nos experts de l'habitat sans plus attendre et donnez vie à votre projet de construction !
A partir des paramètres de l'offre maison + terrain clé en main située à Douvrin dans le 62, découvrez d'autres offres susceptibles de vous intéresser.
Nos équipes travaillent au quotidien avec un vaste réseau de partenaires, soigneusement choisis et encadrés pour vous proposer un maximum d'offres maisons et terrains tout inclus dans le Pas-De-Calais.
Habitat Concept vous propose cette offre tout inclus pour vous permettre de devenir propriétaire d'une maison neuve clés en main à Douvrin pour 226 820 € prête à vous accueillir.
Vous n'avez plus qu'à personnaliser et à finaliser ce projet selon vos préférences et vous envies ! ❤️
Faites-nous part de votre demande en rencontrant l'un de nos experts de l'habitat dans l'une de nos agences.
Trouvez l'agence la plus proche de chez vous !
|
Mes offres clés en main
|
||
|---|---|---|
| Aucune sélection |
|
Mes terrains
|
||
|---|---|---|
| Aucune sélection |
|
Mes plans maison
|
||
|---|---|---|
| Aucune sélection |
