Cette offre tout-en-un maison neuve clé en main sur un terrain de 360 m² située à Douvrin (62138) pour 234 920 € vous est proposée par notre agence Habitat Concept LENS.
Offre maison et terrain tout inclus à Douvrin :Projet de construction Maison + Terrain à Douvrin (62138)
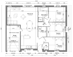
Maison à étage contemporaine et traditionnelle – 100 m² – 3 chambres – Garage inclus – Terrain 360 m²
Habitat Concept, constructeur reconnu de maisons individuelles, vous propose ce projet de construction sur la commune de Douvrin, alliant confort, modernité et qualité de vie.
Localisation et cadre de vie :
Situé à Douvrin, ce terrain de 360 m² se trouve dans un environnement résidentiel calme, idéal pour une vie de famille épanouie.
La commune offre écoles, commerces, services et infrastructures sportives à proximité, ainsi qu’un accès rapide à Lens, La Bassée et Béthune.
Votre future maison à étage
Ce modèle de 100 m² habitables se compose de :
Une pièce de vie lumineuse avec cuisine ouverte,
Trois chambres spacieuses,
Une salle de bain fonctionnelle,
Garage inclus pour confort et praticité.
Cette maison respecte la réglementation RE2020, alliant performance énergétique, confort et design contemporain.
Le modèle présenté est personnalisable selon vos envies et vos besoins.
Projet modulable :
Ce projet n’est qu’un exemple. Habitat Concept vous accompagne pour concevoir votre maison sur mesure, adaptée à votre budget et à votre style de vie. Mentions légales
Terrain proposé en accord avec notre partenaire foncier, sous réserve de disponibilité.
Prix hors peintures et aménagements extérieurs.
Illustrations non contractuelles.
Habitat Concept – Constructeur de maisons individuelles, garanties et assurances obligatoires conformes à la législation en vigueur.
Rêvez de votre future maison neuve : contactez nos experts de l'habitat sans plus attendre et donnez vie à votre projet de construction !
A partir des paramètres de l'offre maison + terrain clé en main située à Douvrin dans le 62, découvrez d'autres offres susceptibles de vous intéresser.
Nos équipes travaillent au quotidien avec un vaste réseau de partenaires, soigneusement choisis et encadrés pour vous proposer un maximum d'offres maisons et terrains tout inclus dans le Pas-De-Calais.
Habitat Concept vous propose cette offre tout inclus pour vous permettre de devenir propriétaire d'une maison neuve clés en main à Douvrin pour 234 920 € prête à vous accueillir.
Vous n'avez plus qu'à personnaliser et à finaliser ce projet selon vos préférences et vous envies ! ❤️
Faites-nous part de votre demande en rencontrant l'un de nos experts de l'habitat dans l'une de nos agences.
Trouvez l'agence la plus proche de chez vous !
|
Mes offres clés en main
|
||
|---|---|---|
| Aucune sélection |
|
Mes terrains
|
||
|---|---|---|
| Aucune sélection |
|
Mes plans maison
|
||
|---|---|---|
| Aucune sélection |
