Cette offre tout-en-un maison neuve clé en main sur un terrain de 404 m² située à Mazingarbe (62670) pour 215 520 € vous est proposée par notre agence Habitat Concept LENS.
Offre maison et terrain tout inclus à Mazingarbe :Projet de construction à Mazingarbe (62) – Maison Plain-Pied Contemporain
Avec 35 ans d’expérience, Habitat Concept vous accompagne dans la réalisation de votre projet de construction sur un terrain de 405 m² situé à Mazingarbe, dans un secteur calme et proche des commodités.
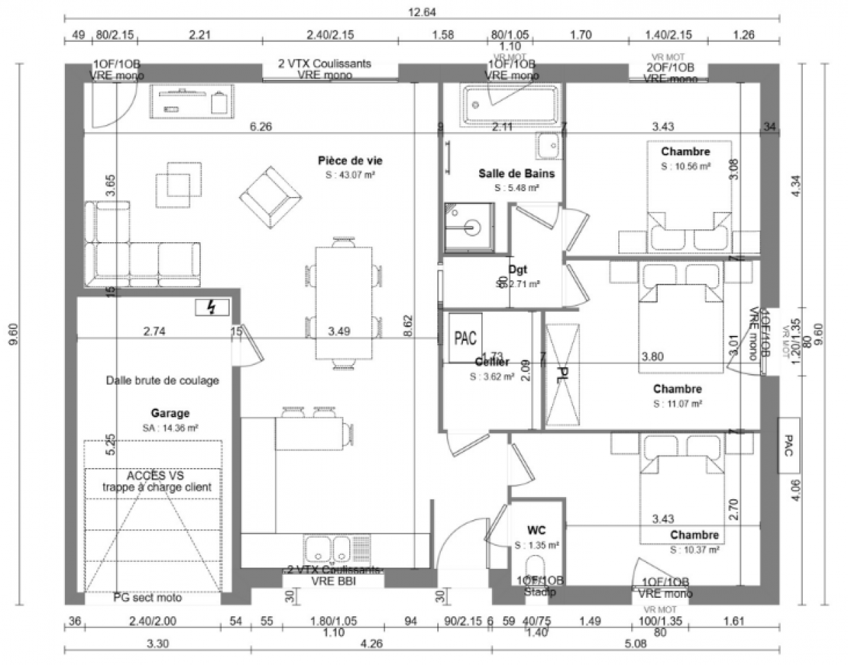
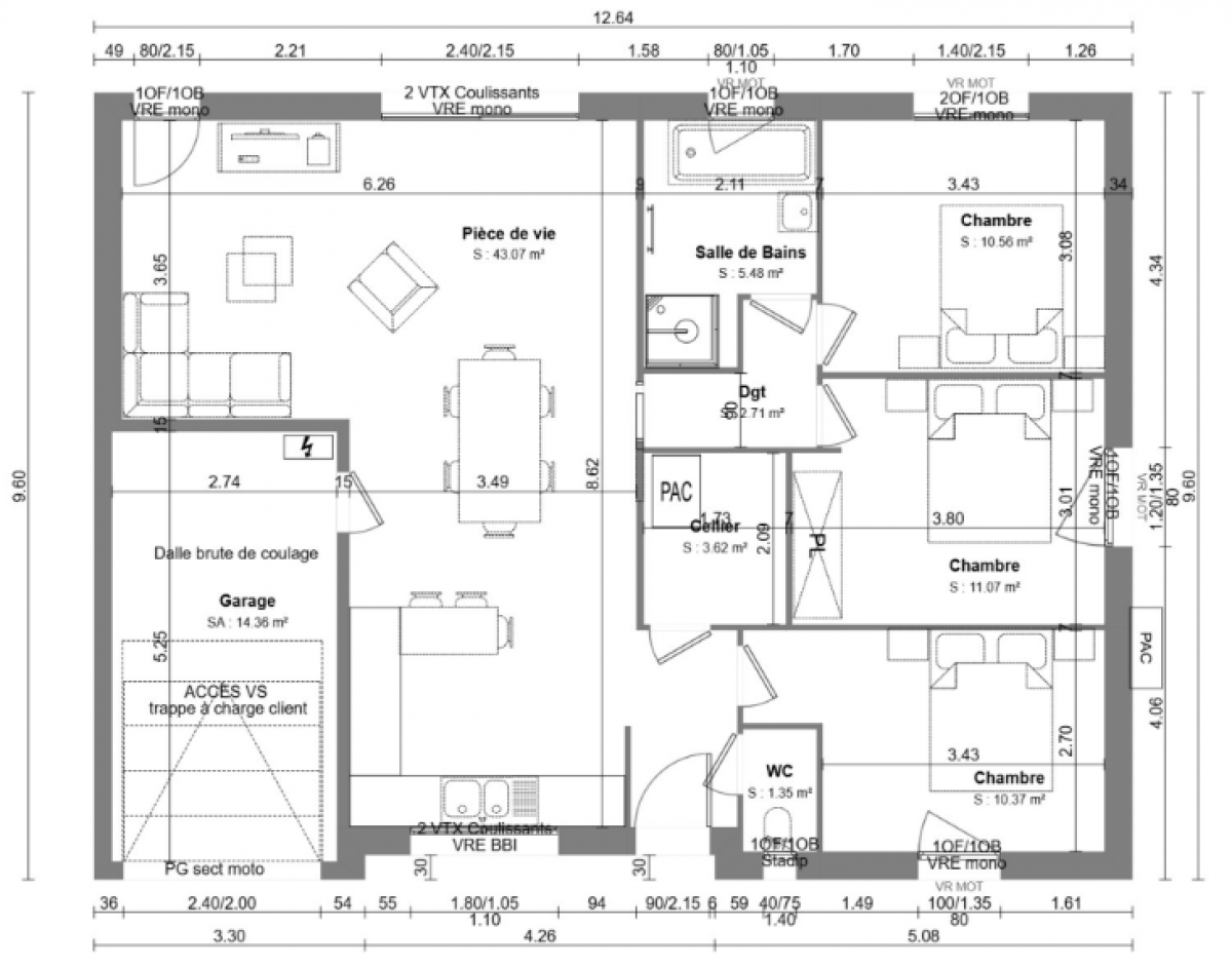
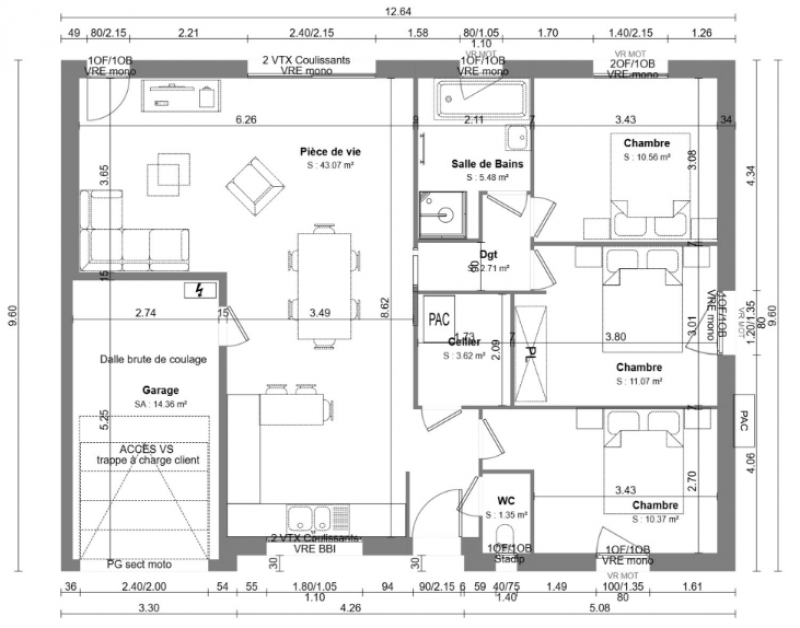
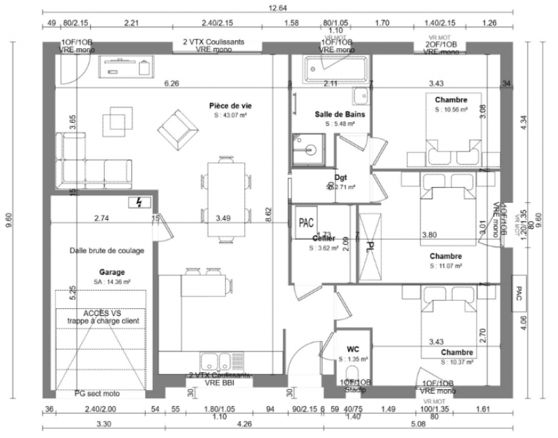
Caractéristiques de la maison :
Type : Plain-Pied
Style : Contemporain
Surface habitable : 89 m²
3 chambres spacieuses
1 salle de bain fonctionnelle
Garage inclus
Construction conforme aux normes RE2020, garantissant confort thermique et économies d’énergie.
Avantages de votre projet :
Éligible au Prêt à Taux Zéro (PTZ) selon conditions d’éligibilité
Assurances constructeur incluses dans le cadre du Contrat de Construction de Maison Individuelle (CCMI)
Accompagnement complet pour la conception, le financement et la réalisation de votre projet
Le terrain de 404 m² offre un espace idéal pour aménager un jardin, une terrasse ou un espace extérieur sur mesure.
Mentions légales obligatoires :
Terrain proposé par un partenaire foncier selon disponibilité. Projet de construction réalisé avec Habitat Concept dans le cadre d’un CCMI. Visuels non contractuels. Prix indicatif, taxes d’urbanisme, aménagements extérieurs et peintures. Éligibilité au PTZ sous conditions. Garanties constructeur incluses : garantie de livraison, garantie de parfait achèvement, garantie biennale et garantie décennale.
Contactez-nous dès aujourd’hui pour une étude gratuite et personnalisée de votre projet de construction à Mazingarbe.
Rêvez de votre future maison neuve : contactez nos experts de l'habitat sans plus attendre et donnez vie à votre projet de construction !
A partir des paramètres de l'offre maison + terrain clé en main située à Mazingarbe dans le 62, découvrez d'autres offres susceptibles de vous intéresser.
Nos équipes travaillent au quotidien avec un vaste réseau de partenaires, soigneusement choisis et encadrés pour vous proposer un maximum d'offres maisons et terrains tout inclus dans le Pas-De-Calais.
Habitat Concept vous propose cette offre tout inclus pour vous permettre de devenir propriétaire d'une maison neuve clés en main à Mazingarbe pour 215 520 € prête à vous accueillir.
Vous n'avez plus qu'à personnaliser et à finaliser ce projet selon vos préférences et vous envies ! ❤️
Faites-nous part de votre demande en rencontrant l'un de nos experts de l'habitat dans l'une de nos agences.
Trouvez l'agence la plus proche de chez vous !
|
Mes offres clés en main
|
||
|---|---|---|
| Aucune sélection |
|
Mes terrains
|
||
|---|---|---|
| Aucune sélection |
|
Mes plans maison
|
||
|---|---|---|
| Aucune sélection |
